Время на Кипре:
03:26
12°С
Время на Кипре:
03:26

Объект #121789

Архив
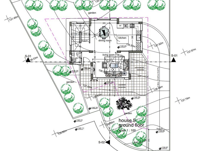
Вилла / Дом
Объект № 15073
Спален:3
Общая площадь:136 м2

Продаётся новый дом на этапе строительства в Limassol, Parekklisia. Дом включает просторную гостиную, современную кухню, три спальни и три санузла. На территории дома предусмотрена большая терраса с местом для барбекю, гараж для вашего автомобиля и просторный подвал. Для строительства используются современные материалы высшего качества с отличной теплоизоляцией, выполненные в современном стиле и дизайне.